成全影视在线观看_虫虫漫画免费漫画弹窗入口_三人成全免费观看电视剧高清完整版_清穿名器多夫巨肉h

您當前的位置: 風淋室 > 潔凈室施工

風淋傳遞窗的功能與原理

風淋傳遞窗的功能與原理

在潔凈室、電子廠房等對環境潔凈度要求極高的場所,風淋傳遞窗作為一種重要的空氣凈化設備,風淋傳遞窗功能與原理至關重要。以下是關于風淋傳遞窗的功能與原理的詳細介紹。

一、風淋傳遞窗的功能

空氣凈化:

風淋傳遞窗能夠有效地過濾進入室內的空氣,去除空氣中的塵埃、細菌等微粒,保證潔凈室內的空氣潔凈度。

防止污染:風淋傳遞窗可以在人員和物品進入潔凈室前進行初步的空氣凈化,從而防止外部污染進入室內。

減少交叉污染:風淋傳遞窗通過氣流的作用,減少操作人員在進入潔凈室時攜帶的微生物和塵埃,降低交叉污染的風險。

提高工作效率:風淋傳遞窗可以快速實現對物品和人員的空氣凈化,縮短進入潔凈室的時間,提高工作效率。

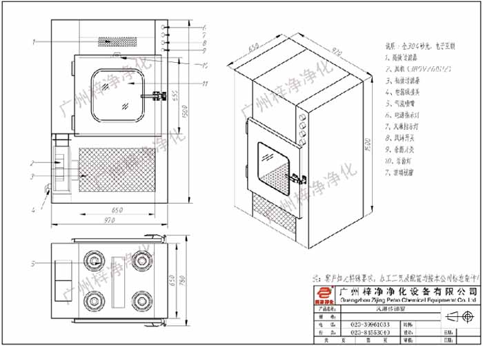
傳遞窗內部裝有高效過濾器和噴嘴

二、風淋傳遞窗的原理

氣幕效應風淋傳遞窗通過高速氣流形成氣幕,使氣流在傳遞窗兩側形成一定壓力,阻止外部空氣和污染物進入潔凈室。

過濾凈化:傳遞窗內部裝有高效過濾器和噴嘴,對進入的空氣進行過濾,確保送入潔凈室內的空氣達到一定的潔凈度。

空氣流動:當人員或物品通過傳遞窗時,風淋傳遞窗會自動啟動,形成垂直向下或水平向外的氣流,將人員和物品表面的塵埃和污染物吹離。

快速關閉:風淋傳遞窗在人員或物品通過后,會迅速關閉,防止未經過濾的空氣進入潔凈室。

風淋傳遞窗設計圖

風淋傳遞窗的具體工作原理如下:

啟動階段:當人員或物品準備進入潔凈室時,按下傳遞窗的啟動按鈕,風淋傳遞窗開始工作。

氣流形成:風淋傳遞窗高效過濾器啟動,產生高速氣流,形成氣幕,阻止外部空氣進入。

空氣凈化:風淋傳遞窗通過高效過濾器過濾后的空氣,對人員和物品進行凈化。

通過階段:人員和物品通過風淋傳遞窗,氣流將表面污染物吹離。

關閉階段:人員和物品通過后,風淋傳遞窗自動關閉,阻止未經過濾的空氣進入潔凈室。

風淋傳遞窗主要用于潔凈室和非潔凈區之間或不同等級不同壓力的潔凈室之間傳遞小物件的設備

總之,風淋傳遞窗作為一種重要的空氣凈化設備,在潔凈室等對環境潔凈度要求極高的場所中發揮著重要作用。了解風淋傳遞窗功能與原理,有助于提高潔凈室的管理水平和空氣質量。

推薦閱讀:風淋傳遞窗百級潔凈層流傳遞窗電動升降式傳遞窗輸送線傳遞窗,落地式傳遞窗